Hôm nay tôi xin giới thiệu với các bạn mẫu nhà từ đường 3 gian đẹp tại TP Quảng Ngãi được KISATO thiết kế cho gia đình chú Trần Thanh Minh. Mời các bạn cùng tham khảo để có thêm những ý tưởng cho công trình tâm linh của gia đình dòng họ mình nhé.
Mẫu Nhà Từ Đường 3 Gian Đẹp Tại Quảng Ngãi
Nhà thờ tổ hay còn tên gọi khác là nhà từ đường, là những công trình kiến trúc dành riêng cho việc thờ cúng lễ bái tổ tiên của 1 dòng họ hoặc từng chi họ tính theo phụ hệ. Mẫu nhà thờ hiện nay rất phổ biến trong tập quán của người Việt vì vậy nhu cầu xây dựng, thiết kế nhà thờ họ, nhà thờ tổ tiên được các gia đình cực kỳ quan tâm.
Trong các phong cách kiến trúc truyền thống tại Việt Nam không thể bỏ qua sự độc đáo và ấn tượng của kiến trúc nhà thờ tổ Việt Nam. Không chỉ mang giá trị nhân văn sâu sắc, việc thiết kế nhà từ đường dường như không phải chuyện đơn giản nếu bạn không đủ kinh nghiệm và trình độ. Với kinh nghiệm thiết kế lâu năm các công trình truyền thống, tiêu biểu là thiết kế nhà thờ tổ tiên đẹp chúng tôi tự tin sẽ là lựa chọn đáng tin cậy cho các gia chủ đang có ý định xây dựng hoặc cải tạo lại khu vực linh thiêng của dòng họ. Mời bạn đọc cùng Kisato chiêm ngưỡng mẫu nhà thờ tổ 3 gian đẹp dưới đây nhé.
Mẫu thiết kế nhà thờ tổ ba gian của chủ đầu tư chú Minh – TP Quảng Ngãi kết hợp vật liệu gạch và gỗ mang đến không gian thờ cúng sang trọng. Nhà thờ 1 tầng mang đến vẻ đẹp cổ kính, thanh tịnh, phù hợp với không gian thờ cúng. Công trình được thiết kế gồm 3 gian với gian giữa rộng hơn 2 gian bên cạnh, mặt tiền sử dụng hoàn toàn gỗ cho hệ thống cánh cửa và xà nhà. Mái của nhà từ đường sử dụng ngói đỏ truyền thống mang lại vẻ đẹp cổ kính, ấn tượng, phù hợp với kiến trúc nhà thờ truyền thống của Việt Nam.
Nhìn hướng chính diện, mặt tiền nhà từ đường với hình khối vuông vắn, tổng thể công trình được tính toán kỹ lưỡng với 9 bậc thuộc cung “sinh”, quanh chân mẫu nhà thờ được ốp gạch thẻ giúp công trình trở nên cao ráo, tránh rêu mốc, tăng tuổi thọ, hệ mái Thái màu đỏ với trên nóc được thiết kế con kìm nằm trên đấu ở hai bên, ở giữa là cuốn thư.
Điểm nhấn cuốn hút cho không gian nhà từ đường này chính là hệ thống cột lòng tòng ngoài hiên nhà từ đường. Toàn bộ hệ thống cột được làm bằng bê tông và sơn giả gỗ. Đặc điểm của hệ thống cột này theo kiến trúc đặc trưng của nhà từ đường là hai bên đầu cột nhỏ, ở giữa cột bụng phình to hơn. Công trình với hai cột đèn sơn giả đá , phía trên cột có thiết kế bốn con hạc và các câu đối được vẽ ở thân cột đèn.
| |
Hệ thống cửa chính làm toàn bộ bằng gỗ tự nhiên, còn lại các hoa văn trang trí, ô thoáng chữ thọ được làm bằng bê tông và thiết kế sẵn sau đó sẽ đua lên gắn sau nên đảm bảo tính chính xác độ tinh tế trong từng chi tiết.
Mẫu nhà thờ tổ của dòng họ chú Minh với không gian sân vườn rộng rãi, sắc xanh bao quanh, được bao bọc bởi hệ tường bê tông đẹp mắt, cùng với đó là trụ cổng vững chắc mang lại cảm giác thoải mái, bình yên cho gia đình, dòng họ vào những dịp cuối tuần, dịp lễ về nghỉ ngơi.
Nhà từ đường kết hợp nhà ngang là loại hình kiến trúc độc đáo, vừa mang đến một công trình kiến trúc hoài cổ mang yếu tố tâm linh mạnh mẽ, vừa tận dụng các không gian trống để thành viên trong gia đình sinh hoạt mà vẫn giữ được vẻ đẹp truyền thống nghiêm trang trong kiến trúc nhà thờ. Theo yêu cầu của gia đình gia chủ, chúng tôi đưa vào một nhà ngang , nhà ngang được đưa vào khuôn viên nằm sau nhà thờ cũ, được gia chủ dùng làm nơi nấu nướng, ăn uống mỗi khi có dịp lễ tết, giỗ của dòng họ.
Tất cả đều phải được nghiên cứu kỹ lưỡng, lên kế hoạch và lựa chọn vật liệu, bởi vậy mà thiết kế bản vẽ nhà thờ họ trước khi tiến hành xây dựng là một việc làm không thể thiếu. Thông qua bản vẽ thiết kế chúng ta có thể vẽ ra lộ trình xây dựng hợp lý nhất, thể hiện đúng mong muốn của gia chủ đối với một nơi thờ cúng thiêng liêng của cả dòng họ.
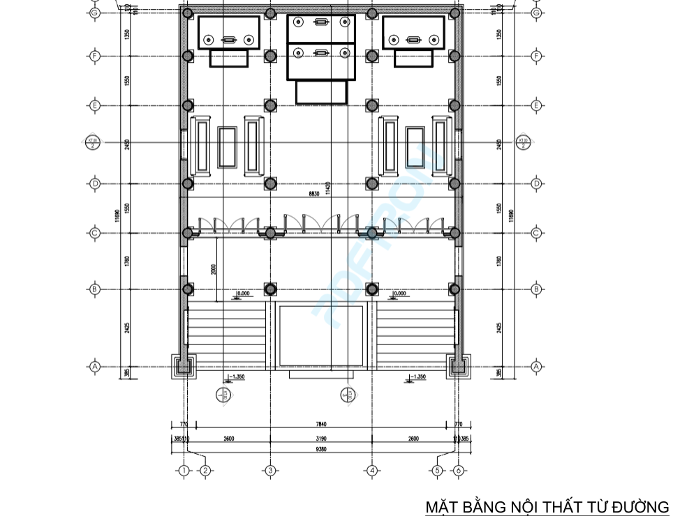
Mặt Bằng Thiết Kế Nhà Từ Đường Đẹp
Sau khi nghe những mong muốn của gia chủ về công trình nhà từ đường này, công ty chúng tôi đã đưa ra phương án mặt bằng cho công trình mẫu từ đường 3 gian đẹp như sau:
Nhà từ đường cao 8,64m với chiều ngang phủ bì là 9,38m trong đó gian giữa là 3,19m ; 2 gian 2 bên là 2,6m và chiều sâu công trình phủ bì là 11,69m.
Thể theo yêu cầu của gia chủ chúng tôi thiết kế 1 nhà ngang với mặt tiền là 6,34m và chiều sâu công trình là 5,38m. Tất cả được thiết kế khoa học , phù hợp phong thủy.
Công ty Kisato chúng tôi là một trong những đơn vị uy tín chuyên cung cấp dịch vụ thiết kế nhà từ đường Việt Nam chuyên nghiệp hiện nay, chúng tôi rất mong muốn được góp một phần công sức nhỏ bé của mình để tạo ra những công trình nhà từ đường bề thế và lưu giữ những giá trị văn hóa tốt đẹp của người Việt. Các công trình nhà thờ sẽ đòi hỏi tay nghề vững vàng trong khâu thiết kế và thi công bởi chỉ có kinh nghiệm và chuyên môn vững vàng thì mới nắm bắt được đầy đủ các yếu tố và đặc trưng của thiết kế nhà từ đường và tạo ra công trình hoàn hảo.
TỪ ĐƯỜNG KISATO- Đơn vị thiết kế, thi công trọn gói mẫu nhà từ đường uy tín nhất hiện nay
Tự hào là đơn vị thiết kế và thi công trọn gói nhà từ đường đẹp hàng đầu, với đội ngũ thiết kế và thi công vững chuyên môn, giàu kinh nghiệm, Kisato luôn mong muốn mang lại những mẫu nhà từ đường đẹp làm vừa lòng mọi khách hàng. Mọi thông tin chi tiết xin liên hệ theo hotline: 0976.019.378 để nhận được ưu đãi tốt nhất và tham khảo thêm các mẫu thiết kế, thi công của Từ Đường KISATO.
