Trong các phong cách kiến trúc truyền thống tại Việt Nam không thể bỏ qua sự độc đáo và ấn tượng của kiến trúc nhà thờ họ Việt Nam. Không chỉ mang giá trị nhân văn sâu sắc, việc thiết kế nhà thờ họ dường như không phải chuyện đơn giản nếu bạn không đủ kinh nghiệm và trình độ. Với kinh nghiệm thiết kế lâu năm các công trình truyền thống, tiêu biểu là thiết kế nhà thờ họ, tổ tiên đẹp chúng tôi tự tin sẽ là lựa chọn đáng tin cậy cho các gia chủ đang có ý định xây dựng hoặc cải tạo lại khu vực linh thiêng của dòng họ. Hôm nay tôi xin giới thiệu với các bạn mẫu từ đường đẹp 3 gian tại Xuân Trường Nam Định được Từ Đường KISATO thiết kế cho gia đình anh Nguyễn Văn Dương.
Video Khảo Sát Và Thực Tế Công Trình Mẫu Từ Đường Đẹp
Nhận được yêu cầu của gia đình anh Dương, Công ty KISATO đã cử một đội khảo sát dầy dặn kinh nghiệm và trang thiết bị hiện đại về tại Nam Định để khảo sát khu đất này. Dưới đây là video quá trình khảo sát mà chúng tôi đã thực hiện.
Video Chia Sẻ Mẫu Từ Đường Đẹp
Mẫu Từ Đường Đẹp 3 Gian Tại Nam Định
Xây nhà thờ họ khác với xây dựng nhà ở bởi đây là nơi tâm linh, thờ phụng và tưởng nhớ về tổ tiên. Chính vì vậy trong quá trình thiết kế nhà thờ cần có sự am hiểu về truyền thống của người Việt, cũng như tinh tế trong việc bố trí không gian và lựa chọn chất liệu phù hợp. Ý nghĩa của việc xây dựng mẫu từ đường đẹp- nhà thờ tổ tiên là hành động hướng về cội nguồn vì vậy cần được phát huy. Mời bạn đọc cùng Kisato tham khảo mẫu từ đường đẹp 3 gian 2 mái dưới đây nhé.
Do cuộc sống đổi thay, nhiều dòng họ có con cháu đi làm ăn xa không thường xuyên về thăm cội nguồn được nên việc xây dựng dòng họ cũng là cách kết nối tình cảm giữa người trong cùng 1 tộc với nhau, là dịp để con cháu được hội họp và kết nối lại mối quan hệ lỏng lẻo khẳng định sức mạnh của tập thể.
Công trình nhà thờ họ này được chúng tôi thiết kế cho dòng họ nhà anh Dương với mong muốn có một ngôi nhà thờ họ để lưu giữ những truyền thống, kỉ niệm của tổ tiên để lại, cùng sum họp, xum vầy con cháu, dòng tộc mỗi khi lễ tết. Sau khi đã tham khảo các đơn vị thiết kế thì dòng họ anh Dương đã chọn Kisato chúng tôi làm đơn vị thiết kế. Sau một thời gian ngắn tìm hiểu ý kiến dòng họ và khuôn viên đất của dòng họ anh, chúng tôi đã đưa ra bản vẽ thiết kế mẫu từ đường đẹp rất được sự hài lòng và ưng ý của dòng họ anh Dương.
Lối thiết kế mẫu từ đường đẹp – nhà thờ họ từ trước đến nay vẫn theo khuôn khổ truyền thống của cha ông. Phía trên mái được sử dụng bằng các hàng ngói đồng đều màu đỏ tươi, màu của lá cờ tổ quốc. Công trình còn trạm trổ thêm chi tiết đôi kìm nằm trên đấu ở hai bên, ở giữa là cuốn thư tinh tế.
Tất cả đều phải được nghiên cứu kỹ lưỡng, lên kế hoạch và lựa chọn vật liệu, bởi vậy mà thiết kế bản vẽ nhà thờ họ trước khi tiến hành xây dựng là một việc làm không thể thiếu. Thông qua bản vẽ thiết kế chúng ta có thể vẽ ra lộ trình xây dựng hợp lý nhất, thể hiện đúng mong muốn của gia chủ đối với một nơi thờ cúng thiêng liêng của cả dòng họ.
Điểm nhấn cuốn hút cho không gian mẫu từ đường đẹp này chính là hệ thống cột lòng tòng ngoài hiên nhà từ đường. Toàn bộ hệ thống cột được làm bằng bê tông và sơn giả gỗ. Đặc điểm của hệ thống cột này theo kiến trúc đặc trưng của từ đường là hai bên đầu cột nhỏ, ở giữa cột bụng phình to hơn. Công trình với hai cột đèn sơn giả đá , phía trên cột có thiết kế bốn con hạc và các câu đối được vẽ ở thân cột đèn.
Hệ thống cửa chính và cửa sổ làm toàn bộ bằng gỗ tự nhiên, ở giữa hệ cửa với các thanh gỗ dọc thông thoáng. Còn lại các hoa văn trang trí, ô thoáng chữ thọ được làm bằng bê tông và thiết kế sẵn sau đó sẽ đưa lên gắn sau nên đảm bảo tính chính xác độ tinh tế trong từng chi tiết.
Hai mặt bên mẫu từ đường đẹp của dòng họ anh Dương được ốp gạch thẻ màu đỏ đẹp mắt, đồng thời chống được rêu mốc theo thời gian. Không gian sân vườn trong ngôi nhà thờ họ xanh mát, rộng rãi mang lại cảm giác an bình cho gia đình dòng họ anh Dương vào những dịp cuối tuần, lễ tết về nghỉ ngơi.
Ngày xưa người ta thường xây nhà thờ họ tách ra một khu riêng biệt vì theo quan niệm dân gian, nhưng ngày nay xu hướng xây dựng nhà thờ họ kết hợp nhà ở lại trở nên rất được ưa chuộng để tiện cho việc coi sóc bàn thờ gia tiên. Theo yêu cầu của gia đình gia chủ, chúng tôi đưa vào một nhà ngang có diện tích 3,8m x 5,8m. Nhà ngang được đưa vào khuôn viên với hệ mái bằng, được gia chủ dùng làm nơi nghỉ ngơi mỗi khi về thăm quê hương, thăm nhà thờ của gia đình hay là nơi ở để coi sóc bàn thờ tổ tiên.
Công ty Kisato chúng tôi là một trong những đơn vị uy tín chuyên thiết kế mẫu từ đường – nhà thờ họ Việt Nam chuyên nghiệp hiện nay, chúng tôi rất mong muốn được góp một phần công sức nhỏ bé của mình để tạo ra những công trình nhà thờ họ bề thề và lưu giữ những giá trị văn hóa tốt đẹp của người Việt. Các công trình nhà thờ họ sẽ đòi hỏi tay nghề vững vàng trong khâu thiết kế và thi công bởi chỉ có kinh nghiệm và chuyên môn vững vàng thì mới nắm bắt được đầy đủ các yếu tố và đặc trưng của thiết kế mẫu từ đường đẹp và tạo ra công trình hoàn hảo.
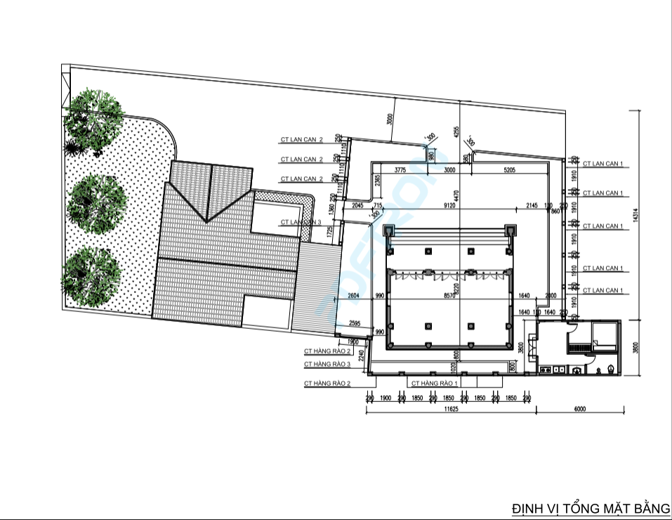
Mặt Bằng Thiết Kế Từ Đường Đẹp
Sau khi nghe những mong muốn của gia chủ về công trình từ đường này, công ty chúng tôi đã đưa ra phương án mặt bằng cho công trình mẫu từ đường đẹp 3 gian như sau:
Công trình được làm bằng bê tông sơn giả gỗ với chiều ngang phủ bì là 9,12m bao gồm: gian giữa 2,91m; 2 gian 2 bên là 2,61m và chiều sâu là 8,49m. Mẫu từ đường đẹp 3 gian 2 mái này cao 7,35m, từ cos sân đến cos nền nhà thiết kế 5 bậc phù hợp với phong thủy được ốp đá xanh thanh hóa.
TỪ ĐƯỜNG KISATO- Đơn vị thiết kế, thi công trọn gói mẫu nhà từ đường uy tín nhất hiện nay
Tự hào là đơn thị thiết kế và thi công trọn gói mẫu từ đường đẹp hàng đầu, với đội ngũ thiết kế và thi công vững chuyên môn, giàu kinh nghiệm, Kisato luôn mong muốn mang lại những mẫu từ đường đẹp làm vừa lòng mọi khách hàng.
Mọi thông tin chi tiết xin liên hệ theo hotline: 0976.019.378 để nhận được ưu đãi tốt nhất và tham khảo thêm các mẫu thiết kế, thi công của Từ Đường KISATO.Quý vị có thể tham khảo kênh YouTube của từ đường Kisato để cập nhật những mẫu thiết kế mới nhé.
