Nhà 5 gian bê tông giả gỗ đang trở thành xu hướng được nhiều gia đình lựa chọn khi xây dựng từ đường nhờ sự kết hợp hài hòa giữa nét đẹp truyền thống và độ bền vượt thời gian. Công trình tại Hưng Yên dưới đây là một ví dụ tiêu biểu với khuôn viên rộng 400m2, mang đến không gian thờ tự trang nghiêm, đẳng cấp.
Tổng Quan Công Trình Nhà 5 Gian Bê Tông Giả Gỗ
-
Loại công trình: Nhà từ đường 5 gian
-
Chất liệu: Bê tông giả gỗ
-
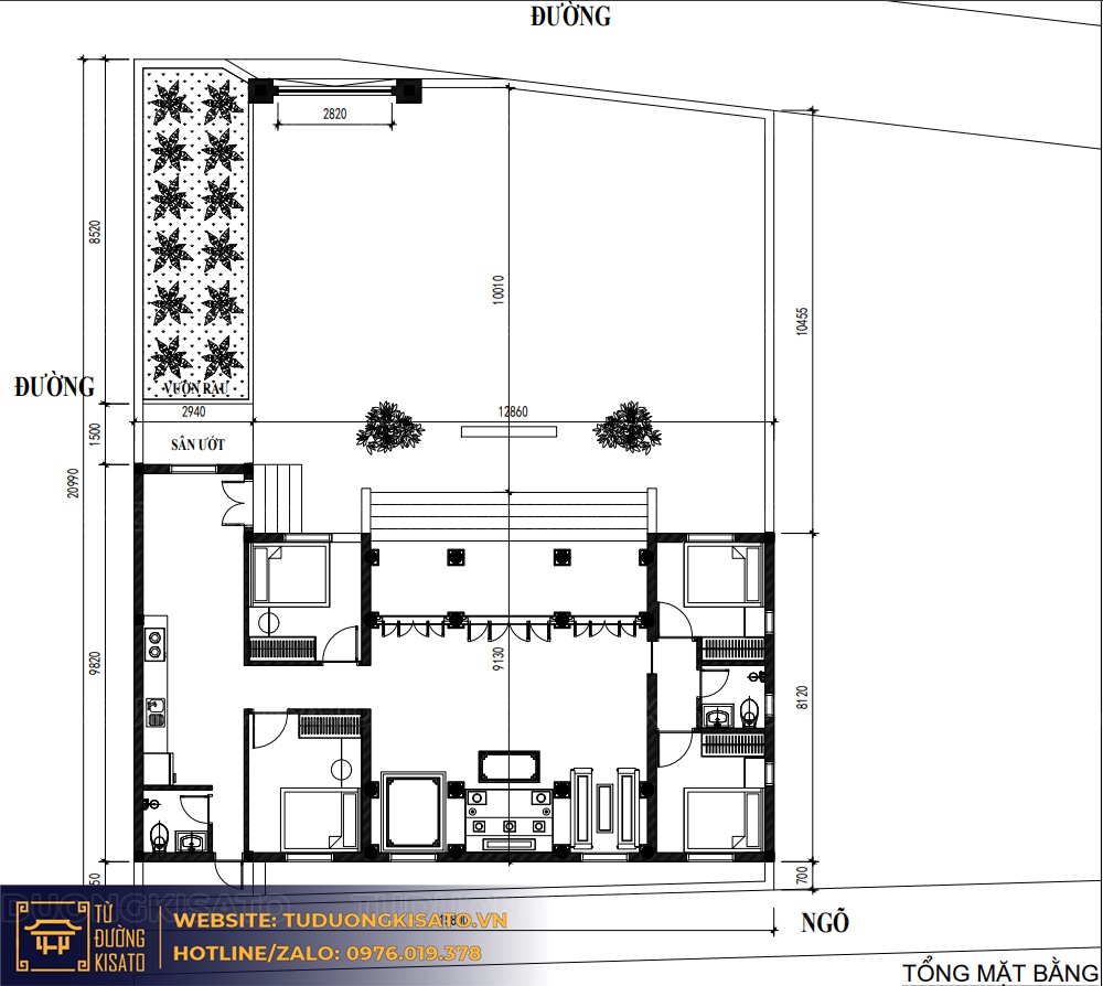
Diện tích khuôn viên: 400m2
-
Phong cách: Kiến trúc truyền thống Bắc Bộ
-
Đơn vị thiết kế thi công: Từ Đường Kisato
Công trình được xây dựng với mục đích thờ cúng tổ tiên, kết hợp không gian sân vườn rộng rãi, tạo sự thoáng đãng và trang nghiêm.
Thiết Kế Nhà 5 Gian Trên Khuôn Viên 400m2 Có Gì Đặc Biệt?
Không gian tổng thể hài hòa
Với diện tích 400m2, công trình được bố trí:
-
Nhà chính 5 gian nằm trung tâm
-
Sân rộng phía trước
-
Khuôn viên cây xanh xung quanh
Tạo nên tổng thể thoáng – đẹp – chuẩn phong thủy.
Bố cục công năng chuẩn truyền thống
-
Gian giữa: Không gian thờ chính
-
Hai gian bên: Tiếp khách, sinh hoạt
-
Hai gian ngoài: Phụ trợ hoặc lưu trữ
Cách bố trí này đảm bảo:
✔ Trang nghiêm
✔ Tiện sử dụng
✔ Đúng văn hóa truyền thống
Chi Tiết Kiến Trúc Nổi Bật Nhà 5 Gian Bê Tông Giả Gỗ
Hệ cột và kết cấu
-
Cột bê tông sơn giả gỗ chắc chắn
-
Kết cấu vững bền hàng chục năm
Mái ngói truyền thống
-
Mái dốc thoát nước tốt
-
Ngói đỏ tạo điểm nhấn cổ kính
Hoa văn trang trí
-
Chạm khắc tinh tế
-
Mang đậm dấu ấn kiến trúc Việt
Kinh Nghiệm Khi Xây Nhà 5 Gian Bê Tông Giả Gỗ
Để công trình đạt chất lượng tốt, bạn nên:
-
Lựa chọn đơn vị thi công uy tín
-
Thiết kế chuẩn ngay từ đầu
-
Chú ý yếu tố phong thủy
-
Tối ưu bố cục khuôn viên
Nhà 5 gian bê tông giả gỗ trên khuôn viên 400m2 tại Hưng Yên là sự lựa chọn hoàn hảo cho những gia đình muốn gìn giữ nét đẹp truyền thống nhưng vẫn đảm bảo độ bền và chi phí hợp lý. Đây không chỉ là công trình kiến trúc mà còn là nơi lưu giữ giá trị tâm linh và văn hóa lâu đời.
Thiết kế Từ đường KISATO đã nổi lên như một lựa chọn ưu việt, mang lại không chỉ sự độc đáo mà còn tính chất hiện đại và sang trọng, Với phương châm: “làm đẹp từ tâm”, Kisato không những cung cấp các dịch vụ thiết kế – thi công trọn gói các công trình nhà ở, mà còn tạo ra rất nhiều các công trình từ đường – nhà thờ họ mang lại nét đẹp truyền thống văn hóa dân tộc. Với nhiều năm kinh nghiệm trong lĩnh vực thiết kế và thi công trọn gói, Từ đường Kisato tự tin là đơn vị tạo ra nhiều công trình từ đường nhất cả nước, chúng tôi phục vụ quý khách hàng trên khắp mọi miền Tổ quốc, làm sao có thể mang đến cho khách hàng những công trình đẹp nhất, khác biệt nhất, thực hiện hóa ước mơ lưu giữ cội nguồn của dòng họ, nhắc nhở chúng ta hướng về cội nguồn. Các bạn quan tâm đến những mẫu thiết kế từ đường khác thì hãy liên hệ đến hotline của chúng tôi nhé.
☎ Hotline: 097.601.9378
