Trong bối cảnh quỹ đất ngày càng hạn chế, việc bố trí không gian thờ cúng riêng biệt là bài toán khiến nhiều gia chủ trăn trở. Giải pháp nhà thờ 3 gian trên mái biệt thự ra đời, vừa đảm bảo yếu tố tâm linh, vừa tối ưu diện tích sử dụng một cách hiệu quả.
Thiết kế nhà thờ 3 gian trên mái biệt thự – Độc đáo và khác biệt
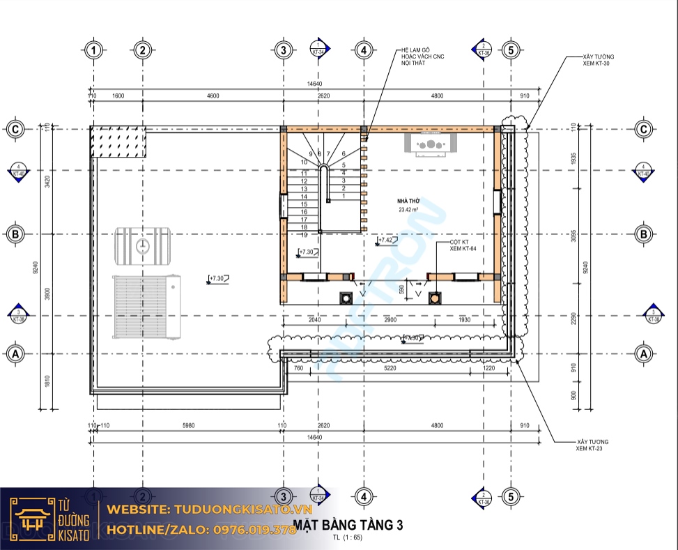
Công trình được thiết kế theo kiến trúc 3 gian truyền thống, kết hợp hài hòa với tổng thể biệt thự 2 tầng hiện đại. Việc đặt nhà thờ trên mái giúp:
- Tách biệt không gian thờ cúng với sinh hoạt
- Tăng sự trang nghiêm, yên tĩnh
- Tận dụng tối đa diện tích đất
Đây là xu hướng thiết kế mới được nhiều gia chủ lựa chọn hiện nay.
Bố trí công năng khoa học, chuẩn phong thủy
Khu vực nhà thờ được bố trí:
- Gian giữa: đặt ban thờ chính
- Hai gian bên: không gian tiếp khách, hành lễ
- Hướng nhà và vị trí đặt ban thờ được tính toán kỹ theo phong thủy
Nhờ đó, công trình vừa đẹp về thẩm mỹ, vừa đảm bảo yếu tố tâm linh.
Ưu điểm nổi bật của nhà thờ trên mái biệt thự
- ✔ Tiết kiệm diện tích đất
- ✔ Tạo không gian thờ cúng riêng biệt
- ✔ Giữ được nét kiến trúc truyền thống
- ✔ Tăng giá trị tổng thể cho công trình
Từ Đường Kisato – Đơn vị thiết kế thi công trọn gói nhà thờ họ
Với nhiều năm kinh nghiệm, Kisato mang đến giải pháp thiết kế và thi công nhà thờ 3 gian trên mái biệt thự đảm bảo:
- Thiết kế chuẩn phong thủy
- Thi công bền vững, thẩm mỹ cao
- Tối ưu chi phí cho gia chủ
Nếu bạn đang tìm kiếm giải pháp vừa có không gian thờ cúng trang nghiêm, vừa tối ưu diện tích sinh hoạt, thì nhà thờ 3 gian trên mái biệt thự 2 tầng chính là lựa chọn lý tưởng.
☎ Hotline/zalo: 0976019378
