Từ đường 2 tầng Kiến An Hải Phòng là mẫu công trình tâm linh được thiết kế nhằm đáp ứng nhu cầu thờ cúng trong điều kiện quỹ đất ngày càng hạn chế. Công trình từ đường 2 tầng Kiến An Hải Phòng không chỉ đảm bảo sự trang trọng trong không gian thờ tự mà còn giúp gia chủ tối ưu diện tích sử dụng một cách hiệu quả.
Thiết kế từ đường 2 tầng tại Hải Phòng hài hòa công năng và phong thủy
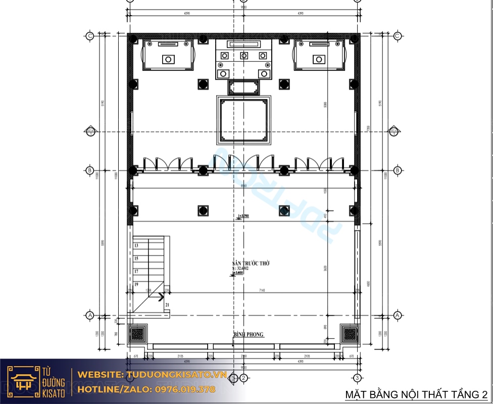
Mẫu từ đường 2 tầng Kiến An Hải Phòng được bố trí khoa học, đảm bảo cả yếu tố thẩm mỹ và công năng:
- Tầng 1: khu vực sinh hoạt chung hoặc tiếp khách
- Tầng 2: không gian thờ cúng chính của từ đường 2 tầng Kiến An Hải Phòng
- Hệ cầu thang thiết kế hợp lý, thuận tiện di chuyển
- Hướng nhà, kích thước được tính toán chuẩn phong thủy
Nhờ cách bố trí này, từ đường 2 tầng Kiến An Hải Phòng luôn giữ được sự trang nghiêm nhưng vẫn tối ưu diện tích sử dụng.
Kết cấu từ đường 2 tầng tại Hải Phòng bền chắc theo thời gian
Công trình từ đường 2 tầng Kiến An Hải Phòng được thi công với hệ kết cấu vững chắc và vật liệu phù hợp:
- Khung kết cấu ổn định, tuổi thọ cao
- Vật liệu bền vững, thích nghi tốt với khí hậu
- Hệ mái thiết kế chống nóng, thoát nước hiệu quả
- Các chi tiết hoàn thiện được thi công tỉ mỉ
Điều này giúp từ đường 2 tầng Kiến An Hải Phòng duy trì chất lượng và tính thẩm mỹ lâu dài.
Ưu điểm nổi bật của từ đường 2 tầng tại Hải Phòng
✔ Tối ưu diện tích xây dựng hiệu quả
✔ Thiết kế từ đường 2 tầng Kiến An Hải Phòng phù hợp khu đất nhỏ
✔ Không gian thờ cúng riêng biệt, đảm bảo sự tôn nghiêm
✔ Kết cấu bền vững, sử dụng lâu dài
Từ đường 2 tầng là giải pháp lý tưởng cho những gia đình mong muốn xây dựng không gian thờ cúng riêng biệt nhưng vẫn tối ưu chi phí và diện tích. Đây không chỉ là nơi thờ tự mà còn là công trình mang ý nghĩa gắn kết các thế hệ, lưu giữ giá trị truyền thống bền vững theo thời gian.
Các bác cần tư vấn chi tiết về công trình từ đường, nhà thờ của mình thì liên hệ bên em theo Hotline/Zalo 0976019378
P/s: À mà bên em có một món quà nữa muốn tặng các bác,bộ sưu tập mẫu 1000+ mẫu từ đường đẹp trong năm nay để các bác có thể tham khảo cho công trình nhà mình https://qua.tuduongkisato.vn/
