Trong bối cảnh nhiều gia đình tại Hà Nội ưu tiên những công trình vừa bền vững vừa giữ được giá trị truyền thống, từ đường 3 gian bê tông giả gỗ Hà Nội trở thành lựa chọn phù hợp. Công trình không chỉ đáp ứng nhu cầu thờ tự mà còn thể hiện sự đầu tư bài bản trong việc gìn giữ không gian tâm linh của gia đình.
Sự kết hợp giữa hình thức kiến trúc truyền thống và vật liệu hiện đại giúp công trình thích nghi tốt với điều kiện sử dụng lâu dài.
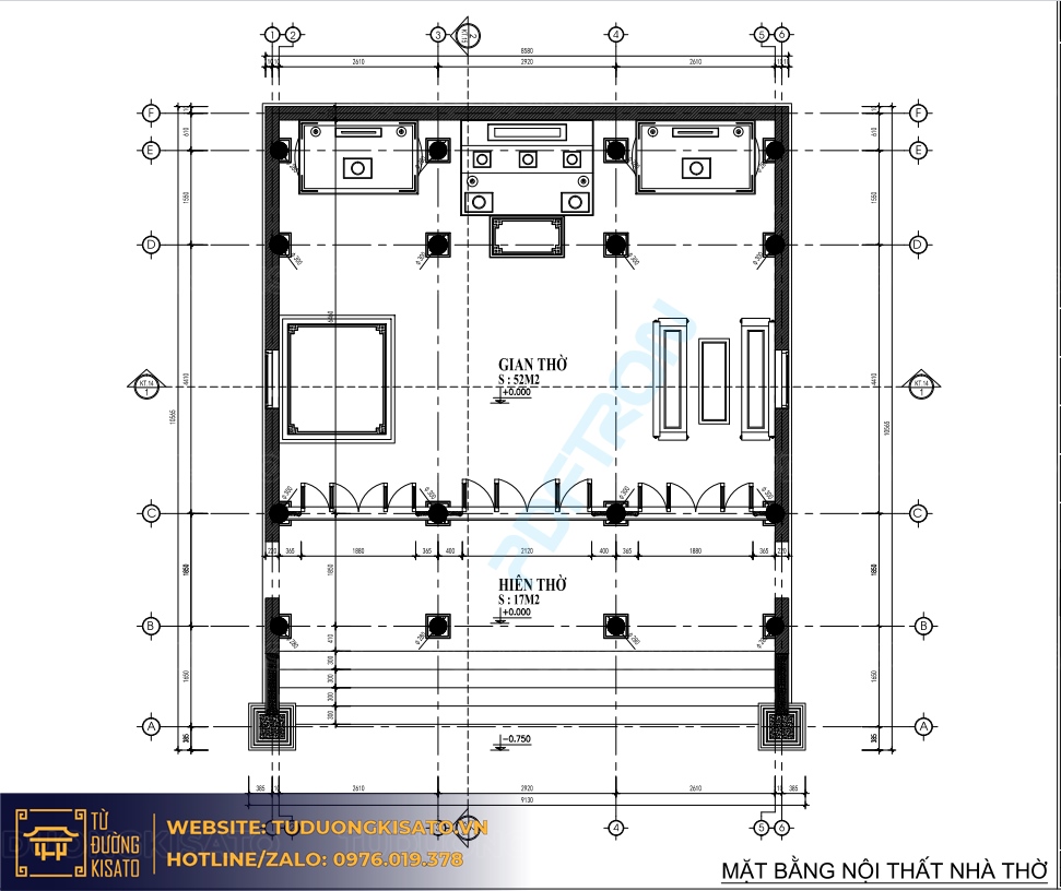
Thiết kế từ đường 3 gian đảm bảo bố cục rõ ràng và dễ sử dụngư
![]() |
Mẫu từ đường 3 gian bê tông giả gỗ Hà Nội được tổ chức theo bố cục quen thuộc, giúp tối ưu công năng:
- Gian chính đặt không gian thờ trung tâm
- Hai gian bên linh hoạt trong sử dụng
- Lối tiếp cận thuận tiện, dễ di chuyển
- Không gian tổng thể thông thoáng, cân đối
Nhờ cách bố trí hợp lý, công trình vừa giữ được nét truyền thống vừa phù hợp với nhu cầu sử dụng thực tế.
Vật liệu bê tông giả gỗ giúp tăng độ bền và giảm chi phí bảo trì
Việc sử dụng bê tông giả gỗ mang lại nhiều lợi ích rõ rệt:
- Đảm bảo kết cấu ổn định theo thời gian
- Hạn chế ảnh hưởng của thời tiết
- Không bị cong vênh hay mối mọt
- Giữ được hình thức gần giống gỗ tự nhiên
Đây là giải pháp được nhiều gia đình lựa chọn khi xây dựng từ đường tại khu vực đô thị như Hà Nội.
Quy trình thi công từ đường 3 gian Hà Nội được kiểm soát chặt chẽ
Công trình được triển khai theo từng giai đoạn rõ ràng, từ khảo sát, thiết kế đến thi công và hoàn thiện. Mỗi bước đều được tính toán kỹ lưỡng nhằm đảm bảo chất lượng và tiến độ.
Việc áp dụng quy trình bài bản giúp hạn chế rủi ro trong quá trình xây dựng và tối ưu chi phí đầu tư cho gia chủ.
Các bác cần tư vấn chi tiết về công trình từ đường, nhà thờ của mình thì liên hệ bên em theo Hotline/Zalo 0976019378
P/s: À mà bên em có một món quà nữa muốn tặng các bác,bộ sưu tập mẫu 1000+ mẫu từ đường đẹp trong năm nay để các bác có thể tham khảo cho công trình nhà mình https://qua.tuduongkisato.vn/
