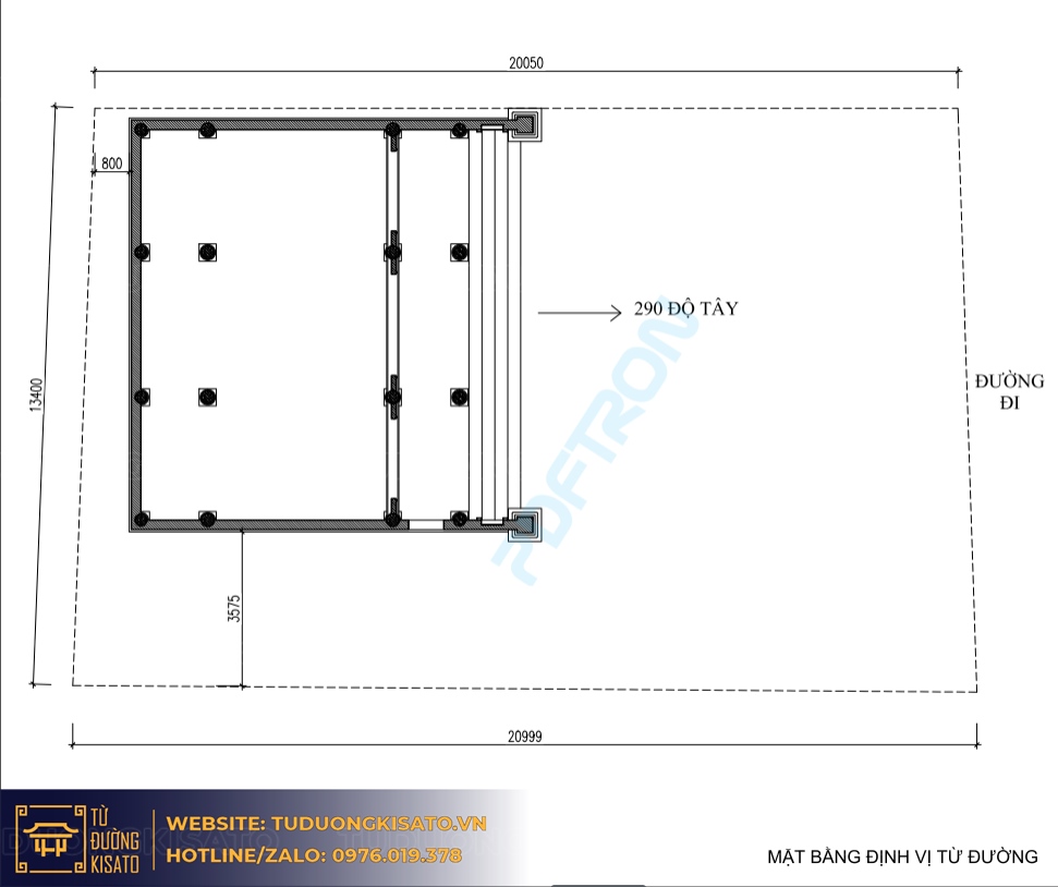
Trong điều kiện quỹ đất ngày càng hạn chế tại Hà Nội, việc xây dựng từ đường 3 gian Hà Nội đòi hỏi sự tính toán kỹ lưỡng để vừa đảm bảo công năng thờ tự, vừa phù hợp với thực tế sử dụng. Công trình không chỉ là nơi thờ cúng mà còn đóng vai trò lưu giữ giá trị truyền thống của gia đình qua nhiều thế hệ.
Với cách tiếp cận hợp lý, mẫu từ đường này hướng đến sự cân bằng giữa kiến trúc truyền thống và điều kiện xây dựng hiện đại.
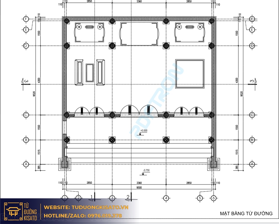
Thiết kế từ đường 3 gian tối ưu bố cục và khả năng sử dụng
![]() |
Từ đường 3 gian Hà Nội được bố trí theo cấu trúc quen thuộc với một gian chính và hai gian phụ, giúp không gian luôn rõ ràng và dễ sử dụng. Khu vực trung tâm dành cho thờ cúng được tổ chức gọn gàng, đảm bảo sự trang nghiêm, trong khi hai bên được tận dụng linh hoạt.
Thiết kế chú trọng đến sự thông thoáng, giúp không gian luôn dễ chịu và phù hợp với việc sử dụng thường xuyên trong các dịp lễ, giỗ.
Vật liệu thi công từ đường 3 gian Hà Nội đảm bảo độ bền lâu dài
Để đáp ứng điều kiện khí hậu và môi trường đô thị, từ đường 3 gian Hà Nội thường sử dụng các vật liệu có độ bền cao như bê tông giả gỗ hoặc kết hợp nhiều giải pháp thi công hiện đại. Điều này giúp công trình:
- Hạn chế ảnh hưởng của thời tiết
- Giảm chi phí bảo trì
- Giữ được hình thức kiến trúc truyền thống
- Đảm bảo kết cấu ổn định theo thời gian
Nhờ đó, công trình có thể duy trì chất lượng trong thời gian dài mà không cần sửa chữa nhiều.
