Từ đường gỗ 3 gian tại Hải Dương là mẫu công trình tâm linh được nhiều gia đình lựa chọn nhờ vẻ đẹp sang trọng, giá trị truyền thống và độ bền cao. Công trình từ đường gỗ 3 gian Hải Dương không chỉ là nơi thờ cúng tổ tiên mà còn thể hiện vị thế và sự đầu tư của gia chủ vào không gian tâm linh.
Từ đường gỗ 3 gian tại Hải Dương chuẩn kiến trúc truyền thống
![]() |
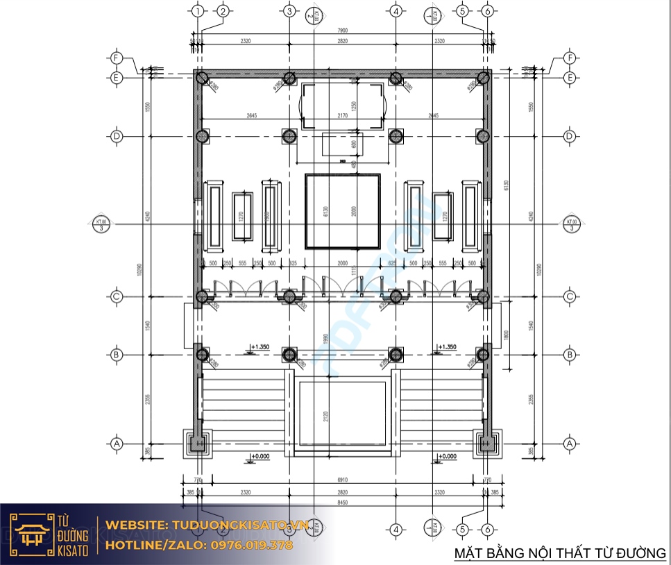
Mẫu từ đường gỗ 3 gian Hải Dương được thiết kế theo phong cách truyền thống với bố cục khoa học:
- Gian giữa: đặt ban thờ chính của từ đường gỗ 3 gian Hải Dương
- Hai gian bên: phục vụ tiếp khách và sinh hoạt trong các dịp lễ
- Hệ cột gỗ, kèo gỗ được bố trí chắc chắn, cân đối
- Hướng nhà và kích thước đảm bảo yếu tố phong thủy
Thiết kế này giúp từ đường gỗ 3 gian Hải Dương luôn giữ được sự trang nghiêm và hài hòa tổng thể.
Từ đường gỗ 3 gian tại Hải Dương có nội thất tinh xảo, giá trị cao
Điểm nổi bật của từ đường gỗ 3 gian Hải Dương nằm ở hệ nội thất được chế tác công phu:
- Ban thờ, cửa võng, hoành phi câu đối chạm khắc tinh xảo
- Chất liệu gỗ tự nhiên mang lại vẻ đẹp sang trọng
- Hoa văn truyền thống thể hiện nét văn hóa lâu đời
- Tạo không gian thờ cúng ấm cúng và linh thiêng
Nhờ đó, từ đường gỗ 3 gian Hải Dương không chỉ đẹp mà còn mang giá trị nghệ thuật cao.
Ưu điểm nổi bật của từ đường gỗ 3 gian tại Hải Dương
✔ Không gian thờ cúng trang nghiêm, riêng biệt
✔ Nội thất gỗ tự nhiên sang trọng, đẳng cấp
✔ Thiết kế từ đường gỗ 3 gian Hải Dương phù hợp nhiều khu đất
✔ Giá trị sử dụng lâu dài theo thời gian
Từ đường gỗ 3 gian tại Hải Dương – Lựa chọn xứng tầm cho gia chủ
Từ đường gỗ 3 gian Hải Dương là giải pháp hoàn hảo cho những gia đình mong muốn xây dựng không gian thờ cúng vừa đẹp, vừa bền, vừa thể hiện được giá trị truyền thống. Đây không chỉ là công trình tâm linh mà
Các bác cần tư vấn chi tiết về công trình từ đường, nhà thờ của mình thì liên hệ bên em theo Hotline/Zalo: 0976019378
P/s: À mà bên em có một món quà nữa muốn tặng các bác,bộ sưu tập mẫu 1000+ mẫu từ đường đẹp trong năm nay để các bác có thể tham khảo cho công trình nhà mình https://qua.tuduongkisato.vn/
