Trong bối cảnh nhiều gia đình ngày càng coi trọng giá trị truyền thống, việc xây dựng từ đường tại Ninh Bình không chỉ dừng lại ở một công trình kiến trúc mà còn mang ý nghĩa gìn giữ cội nguồn và gắn kết các thế hệ. Một mẫu từ đường được đầu tư bài bản sẽ giúp không gian thờ tự trở nên trang trọng, đồng thời thể hiện sự thành kính đối với tổ tiên.
Điểm nổi bật của công trình này là sự kết hợp giữa tư duy thiết kế hiện đại và nét kiến trúc truyền thống, mang đến một tổng thể hài hòa, phù hợp với văn hóa địa phương.
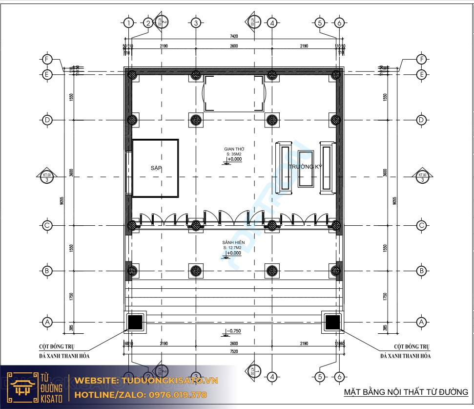
Thiết kế từ đường 3 gian tối ưu công năng và thẩm mỹ
Mẫu từ đường tại Ninh Bình được xây dựng theo bố cục 3 gian quen thuộc, tạo nên không gian cân đối và dễ dàng bố trí công năng. Khu vực thờ chính được đặt ở vị trí trung tâm, đảm bảo sự trang nghiêm, trong khi hai gian bên được tận dụng linh hoạt cho các mục đích sử dụng khác.
Không gian luôn được chú trọng sự thông thoáng, giúp lưu thông không khí tốt và tạo cảm giác dễ chịu mỗi khi con cháu về thắp hương, sum họp. Đây là yếu tố quan trọng giúp công trình giữ được giá trị sử dụng lâu dài.
Vật liệu bền vững giúp từ đường tại Ninh Bình duy trì theo thời gian
Một trong những yếu tố quyết định chất lượng công trình từ đường tại Ninh Bình chính là vật liệu thi công. Giải pháp bê tông giả gỗ được lựa chọn nhằm đảm bảo độ bền cao, hạn chế tác động của thời tiết mà vẫn giữ được vẻ đẹp gần gũi với kiến trúc truyền thống.
Ngoài ra, các chi tiết hoàn thiện cũng được chăm chút kỹ lưỡng, từ hệ mái, cột trụ cho đến hoa văn trang trí. Tất cả góp phần tạo nên một tổng thể đồng nhất, vừa chắc chắn vừa có giá trị thẩm mỹ cao.
Quy trình thi công từ đường bài bản và rõ ràng
Công trình được triển khai theo quy trình thi công khoa học, bắt đầu từ khảo sát thực tế, lên phương án thiết kế cho đến từng giai đoạn thi công cụ thể. Mỗi bước đều được kiểm soát chặt chẽ nhằm đảm bảo tiến độ và chất lượng.
Việc áp dụng quy trình rõ ràng không chỉ giúp gia chủ dễ dàng theo dõi mà còn hạn chế phát sinh chi phí, đảm bảo công trình hoàn thiện đúng như kỳ vọng ban đầu.
Giá trị lâu dài của công trình từ đường tại Ninh Bình
Không chỉ là một công trình xây dựng, từ đường tại Ninh Bình còn mang ý nghĩa tinh thần sâu sắc đối với mỗi gia đình. Đây là nơi lưu giữ ký ức, là điểm kết nối giữa quá khứ và hiện tại, giúp các thế hệ con cháu luôn hướng về nguồn cội.
Với thiết kế hợp lý, vật liệu bền vững và quy trình thi công chuyên nghiệp, mẫu từ đường này hoàn toàn đáp ứng được nhu cầu sử dụng lâu dài, đồng thời trở thành niềm tự hào của gia chủ.
Các bác cần tư vấn chi tiết về công trình từ đường, nhà thờ của mình thì liên hệ bên em theo Hotline/Zalo 0976019378
P/s: À mà bên em có một món quà nữa muốn tặng các bác,bộ sưu tập mẫu 1000+ mẫu từ đường đẹp trong năm nay để các bác có thể tham khảo cho công trình nhà mình https://qua.tuduongkisato.vn/
